WyldwoodLogo
“Beneath the canopy, woodland paths meander between sheltered glades, the trees alive with birdsong."
Wyldwood

Approximately 30 acres in size, the Wyldwood provides an intimate venue for smaller groups. The camping area and facilities nestle in a pine woodland.

The Wyldwood also benefits from a wide variety of terrain including open areas of deciduous woodland, oak pasture, and a small seasonal lake (not suitable for swimming).

The Wyldwood is equipped with toilet and shower facilities, and a 100m² communal cabin building.

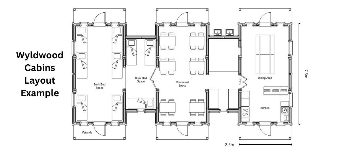
Below are the floor plan layouts of the facilities available as part of the Wyldwood Venue Hire.

The Wyldwood venue has a moderate sized car park space. Vehicles can also park on the surrounding access ways to be closer to the buildings. Note there is no electric hook up option available for camper vans within this venue.

Photo Gallery of The Wyldwood:

Floorplans for Wyldwood Buildings